Work
About
Menu
Work
About
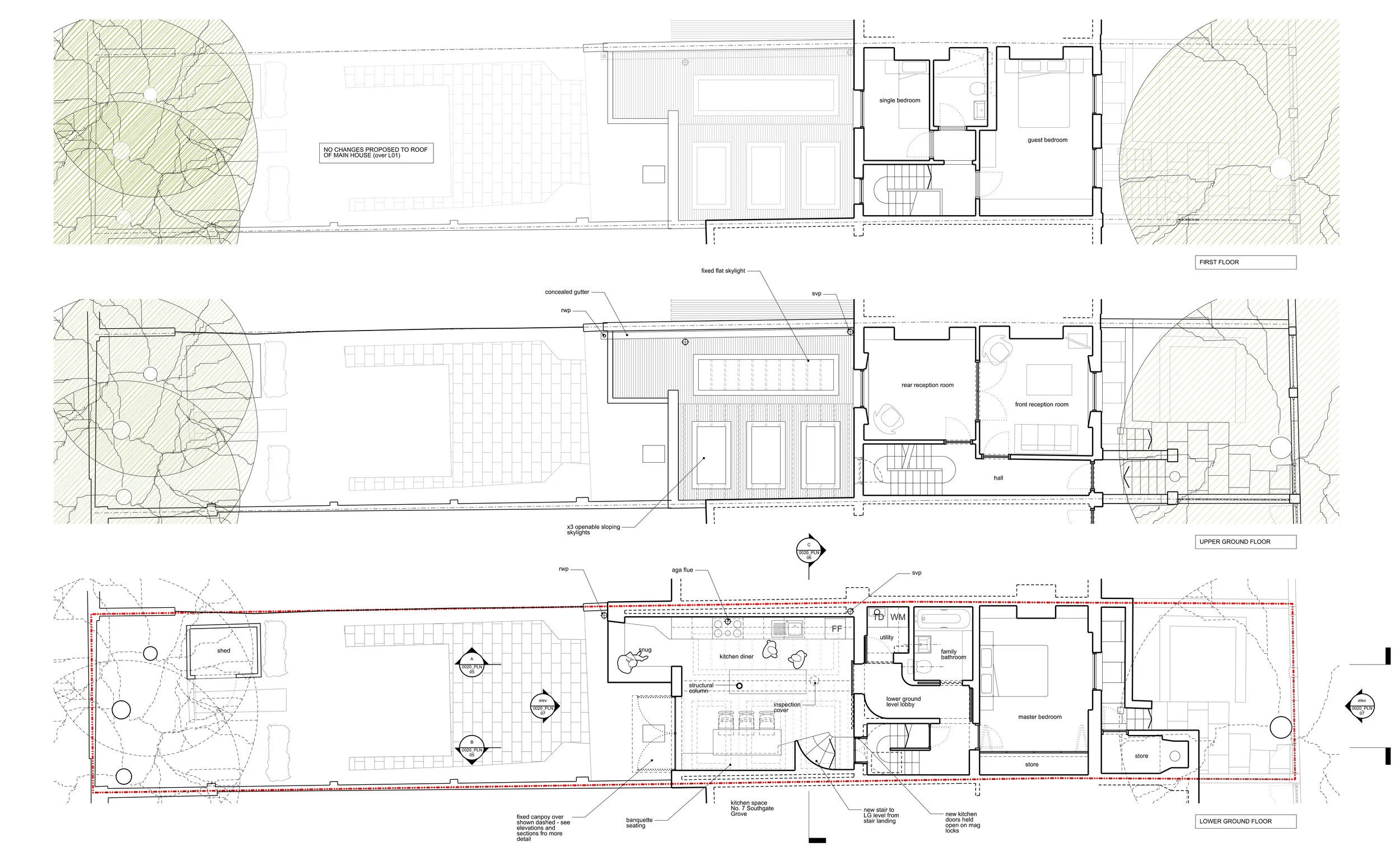
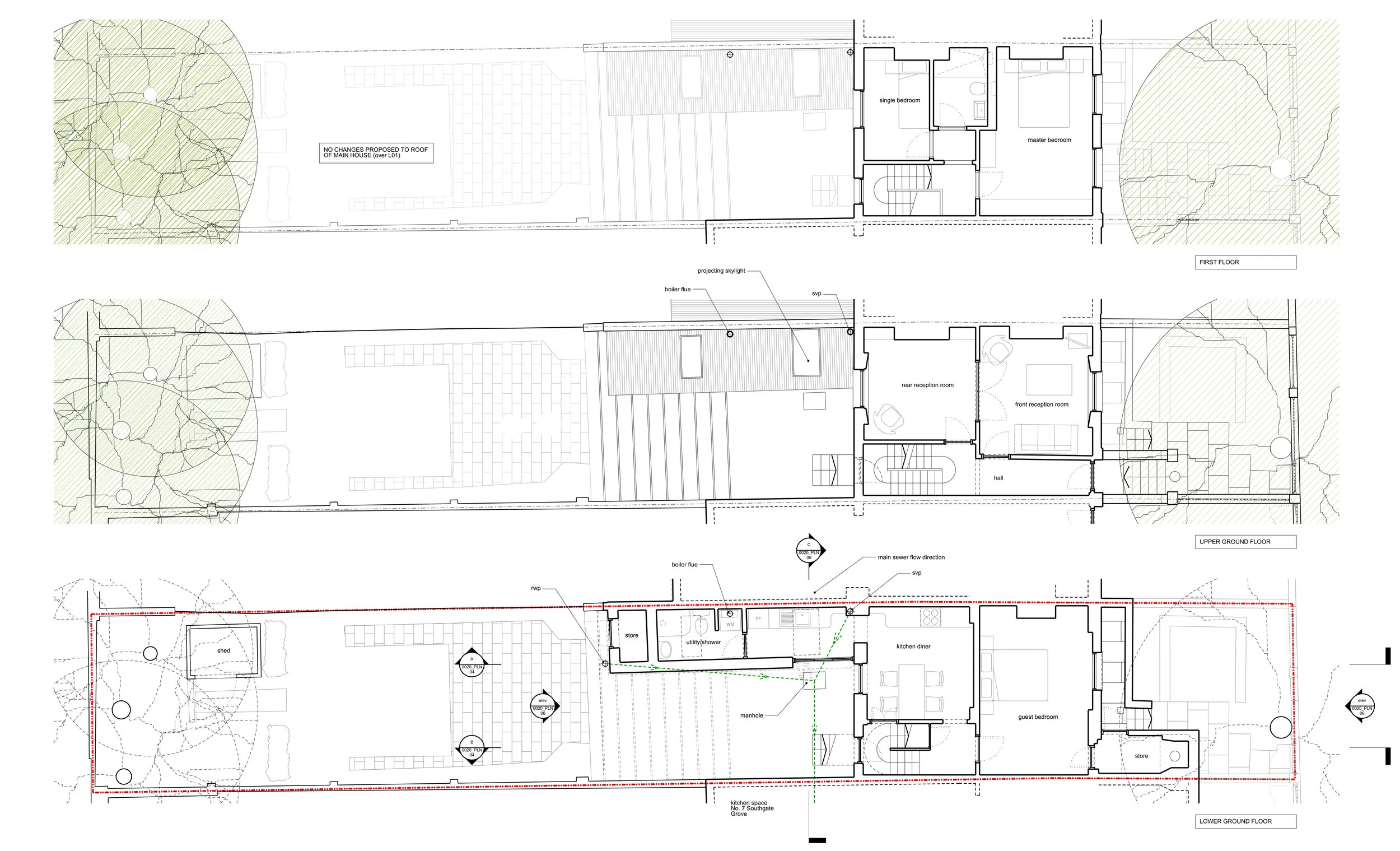
southgate grove, dalston, london, N1
View fullsize
View fullsize
View fullsize
View fullsize
View fullsize
View fullsize